30x60 House Plan | 8 Marla House Plan

30x60 House Plan | 8 Marla House Design Pakistan | 8 Marla House Designs | 8 Marla House Design | 8 Marla House Plan | Map of 8 Marla House | 30x60 House Islamabad | 30x60 House Design 

30x60 House Plan | 8 Marla House Plan
Ground Floor Plan of 30x60 House Plan
We are giving you the best 30x60 House Plan or 8 Marla House Design Pakistan here. We are introducing this wonderful and extravagant 8 Marla House Design or 30x60 House Plan Islamabad since there are numerous 30x60 plots in towns and social orders. The client's all's prerequisites for the Design for the 8 Marla House Plan or 30x60 House Plan will be met by this Map of 8 Marla House or 30x60 House Plan. We figure you will love 8 Marla House Design Pakistan or our most flawless 8 Marla House Design.

We are covering these topics in this article 8 Marla House in Bahria Town Lahore,30x60 House Plan and Elevation, 30x60 House Plan East Facing, 30x60 House Plan South Facing, 30x60 House Plan West Facing, 8 Marla House Design Pakistan, 30x60 House Plan, 30x60 House Plan Islamabad, 8 Marla House Design8 Marla House Designs, Map of 8 Marla House, Bahria Town Lahore 8 Marla House For Sale, 8 Marla House for Sale in Bahria Town Lahore, 8 Marla House for Sale in Lahore, 8 Marla House Bahria Town Lahore.

30x60 House Plan  | 8 Marla House Plan

On the Ground Floor Plan of the 30x60 House Plan or 8 Marla House Design Pakistan, the door size is 15'- 0" which is sufficient size for an entryway in the 30x60 House Plan or 8 Marla House Design. At the point when we go into the house through the fundamental door, there is a 16'- 1½" x 18'- 3" vehicle patio for vehicle leaving. On the left half of the vehicle patio in this 30x60 House Plan or 8 Marla House Design Pakistan, there is a 12'- 0" x 16'- 7½" extensive drawing space for the blasts with 3'- 6" wide entryway and 5'- 0" wide front window for the ventilation from the front grass and the size of the front yard is a 4'- 7½" wide which is enough for a clothing region. At the point when we go into the house through the 5'- 0" wide primary entryway in this Map of 8 Marla House or 8 Marla House Designs, there is a 8'- 3" wide flight of stairs for the steps in which the steps are going up to the principal floor and the size of the step is a 3'- 6" wide which is a standard size for the steps. On the right half of the flight of stairs in this 30x60 House Plan and Elevation or 30x60 House Plan East Facing, there is a 17'- 6" x 14'- 0" extensive parlor for the family setting region which is sufficient size for a family. On the left half of the parlor in this 30x60 House Plan or 8 Marla House Design, there is a 7'- 9" x 11'- 6" sweeping kitchen with 3'- 0" wide entryway and 4'- 0" wide window for the ventilation for the kitchen from the side yard and the size of the side grass is a 3'- 0" wide. We have made two rooms in this 8 Marla House Design Pakistan or 8 Marla House Design, the size of the reasonable side room is a 13'- 3" x 16'- 4½ with a 3'- 6" wide entryway and 4'- 0" wide window for the ventilation from the back grass and the size of the back yard is a 11'- 0" x 5'- 4½" wide. This room has connected cabinet and restroom. The size of the cabinet is 11'- 6" x 2'- 0" and the size of the connected restroom is a 7'- 0" x 5'- 0" with 2'- 6' entryway. The size of the went out 30x60 House Plan South Facing or 30x60 House Plan West Facing is a 14'- 4½" x 13'- 3" with 10'- 7½ wide cabinets, 3'- 6" wide entryway and 4'- 0" wide window for the ventilation from the back grass. This room has a connected washroom and the size of the restroom is a 9'- 4½" x 5'- 0" with 2'- 6" wide entryway. 

30x60 House Plan PDF | 8 Marla House Plan Design Pakistan | 8 Marla House Design

Please Subscribe to our Channel to Unlock the Download Link Thank You

30x60 House Plan | 7 Marla House Plan

30x60 House Plan | 8 Marla House Plan Design Pakistan | 8 Marla House Design


30x60 House Plan | 8 Marla House Plan
First Floor Plan of 30x60 House Plan

First Floor Plan of 30x60 House Plan | 8 Marla House Design Pakistan

On the First Floor of this 30x60 House Plan or 8 Marla House Design, the vehicle patio is transformed into the porch and the drawing room is transformed into the room the size of this room is a 12'- 0" x 13'- 6" which is enough for a standard room with connected restroom and the size of the washroom is a 5'- 6" x 5'- 0". The flight of stairs is 8'- 3" wide in which the steps are going up to the highest level and going to the cold earth floor in this 30x60 House Plan or 8 Marla House Design Pakistan. The size of the parlor on the principal floor of this Map of 8 Marla House or 8 Marla House Designs is 17'- 6" x 12'- 0" which is extensive for the family setting region. On the left 50% of the parlor in this 30x60 House Plan or 8 Marla House Design, there is a 7'- 9" x 11'- 6" broad kitchen with a 3'- 0" wide doorway and a 4'- 0" wide window for the ventilation for the kitchen from the side grass and the size of the side yard is a 3'- 0" wide. We have made two rooms in this 30x60 House Plan or 8 Marla House Design Pakistan, the size of the sensible side room is a 13'- 3" x 16'- 4½ with 3'- 6" wide entrance and 4'- 0" wide window for the ventilation from the back grass and the size of the back yard is a 11'- 0" x 5'- 4½" wide. This room has an attached bureau and bathroom. The size of the storage space is 11'- 6" x 2'- 0" and the size of the attached bathroom is 7'- 0" x 5'- 0" with 2'- 6' entrance. The size of the went-out 30x60 House Plan South Facing or 30x60 House Plan West Facing is a 14'- 4½" x 13'- 3" with 10'- 7½ wide cupboards, a 3'- 6" wide entrance, and a 4'- 0" wide window for the ventilation from the back yard. This room has a joined washroom and the size of the bathroom is 9'- 4½" x 5'- 0" with a 2'- 6" wide entrance.

30x60 House Plan and Elevation, 30x60 House Plan East Facing, 30x60 House Plan South Facing, 30x60 House Plan West Facing, 8 Marla House Design Pakistan, 30x60 House Plan, 30x60 House Plan Islamabad, 8 Marla House Design8 Marla House Designs, Map of 8 Marla House, Bahria Town Lahore 8 Marla House For Sale, 8 Marla House for Sale in Bahria Town Lahore, 8 Marla House for Sale in Lahore, 8 Marla House Bahria Town Lahore.

30x60 House Plan | 8 Marla House Plan Design Pakistan | 8 Marla House Design


30x60 House Plan | 8 Marla House Plan
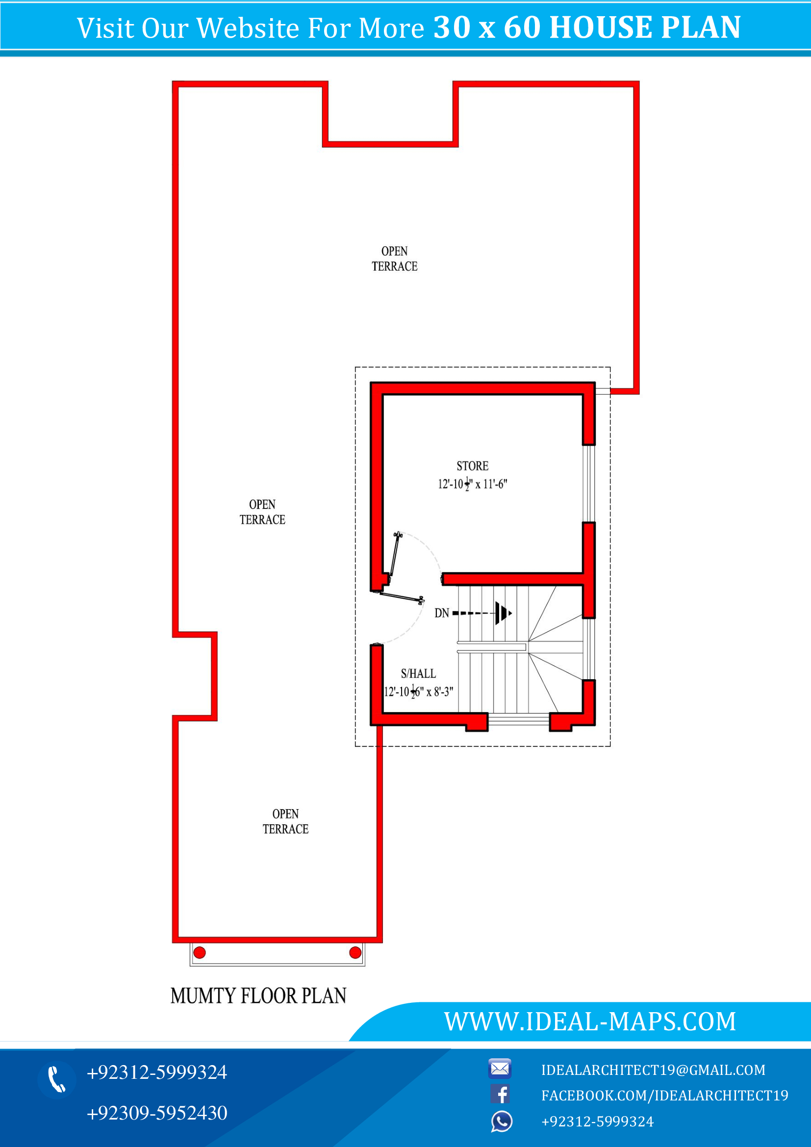
Mumty Floor Plan of 30x60 House Plan | 8 Marla House Plan

Top Floor of 30x60 House Plan | 8 Marla House Plan

On the highest level of the 30x60 House Plan or 8 Marla House Design, we made a mumty which is a 12'- 10½ x 8'- 3" wide with a 5'- 0" wide primary entryway and 5'- 0" wide window for the ventilation. On the highest level of the 30x60 House Plan Pakistan or 8 Marla House Plan, we made a store on the rear of the step corridor and the size of the store is a 12'- 10½" x 11'- 6" wide with 5'- 0" wide entryway and 6'- 0" wide side window the ventilation.

30x60 House Plan | 8 Marla House Plan Design Pakistan | 8 Marla House Design

30x60 House Plan Elevation | 8 Marla House Design 

30x60 House Plan | 8 Marla House Plan
30x60 House Plan | 8 Marla House Design Pakistan
30x60 House Plan | 8 Marla House Plan
30x60 House Plan | 8 Marla House Design Pakistan

30x60 House Plan | 8 Marla House Plan
30x60 House Plan | 8 Marla House Design Pakistan
30x60 House Plan | 8 Marla House Plan
30x60 House Plan | 8 Marla House Design Pakistan
30x60 House Plan | 8 Marla House Plan
30x60 House Plan | 8 Marla House Design Pakistan
30x60 House Plan | 8 Marla House Plan
30x60 House Plan | 8 Marla House Design Pakistan
30x60 House Plan | 8 Marla House Plan
30x60 House Plan | 8 Marla House Design Pakistan
30x60 House Plan | 8 Marla House Plan
30x60 House Plan | 8 Marla House Plan
30x60 House Plan | 8 Marla House Design Pakistan

30x60 House Plan Islamabad | 8 Marla House Design 

30x60 House Plan | 8 Marla House Plan
30x60 House Plan | 8 Marla House Design Pakistan
30x60 House Plan | 8 Marla House Plan
30x60 House Plan | 8 Marla House Design Pakistan
30x60 House Plan | 8 Marla House Plan
30x60 House Plan | 8 Marla House Design Pakistan
30x60 House Plan | 8 Marla House Plan
30x60 House Plan | 8 Marla House Design Pakistan
30x60 House Plan | 8 Marla House Plan
30x60 House Plan | 8 Marla House Design Pakistan
30x60 House Plan | 8 Marla House Plan
30x60 House Plan | 8 Marla House Design Pakistan
30x60 House Plan | 8 Marla House Plan
30x60 House Plan | 8 Marla House Design Pakistan
30x60 House Plan | 8 Marla House Plan
30x60 House Plan | 8 Marla House Design Pakistan
30x60 House Plan | 8 Marla House Design Pakistan
30x60 House Plan | 8 Marla House Design Pakistan
30x60 House Plan | 8 Marla House Plan
30x60 House Plan | 8 Marla House Design Pakistan

We hope you will like our We trust you like this  30x60 House Plan, 8 Marla House Design, 8 Marla House Plan, 8 Marla House Design, and 8 Marla House Plan.

30x60 House Plan | 8 Marla House Design Pakistan
Ideal Architect

Post a Comment

0 Comments

Contact Us